Chia sẻ tới các bạn trong diễn đàn xây dựng & diễn đàn kiến trúc Bản vẽ cad Biệt thự 3 tầng hiện đại gần 80m2 trên diện tích đất 200m2, bản vẽ cad này là mẫu thiết kế nhà biệt thự 3 tầng mái ngói sang trọng, tiện nghi phù hợp nguyên tắc, xu hướng hiện đại ngày nay là: “tổng thể đơn giản, chi tiết phong phú”. Anh em xem và cho tôi xin ý kiến đóng góp nhé.
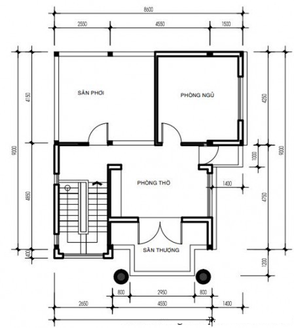
Mẫu bản vẽ cad




Hình ảnh tham khảo
Chia sẻ thêm với quý khách hàng & anh em diễn đàn kiến trúc, diễn đàn xây dựng, diễn đàn phong thủy, một số file cad những mẫu biệt thự 3 tầng hiện đại đẹp nhất:





Như vậy là tôi đã chia sẻ tới anh em là thành viên của diễn đàn xây dựng & diễn đàn kiến trúc file cad biệt thự 3 tầng hiện đại. Tôi nghĩ rằng rất hữu ích với anh em. Phần cuối tôi có chia sẻ thêm 1 số bản dựng 3D để cho những cá nhân đang tìm kiếm một bản vẽ áp dụng xây nhà của mình, tôi ngĩ rằng phần chia sẻ này sẽ là một gợi ý rất giá trị Nếu mọi người cần thêm thông tin về những mẫu biệt thự 3 tầng hiện đại đẹp hoặc mẫu khác, hoặc theo một trong những thiết kế trên hoặc có ý tưởng riêng hãy liên hệ với mình theo số HOTLINE dưới đây:
Video biệt thự đẹp
-
Người dùng tìm kiếm
- Biệt thự 2 tầng có gara
- Biệt thự 2 tầng chữ L
- Biệt thự 2 tầng mái dốc
- Biệt thự 2 tầng mái ngói
- Biệt thự 2 tầng mái Thái
- Biệt thự 2 tầng đẹp
- Biệt thự 3 tầng đẹp
- Biệt thự cổ điển Châu Âu
- Biệt thự song lập
- Mẫu biệt thự 1 tầng
- Mẫu biệt thự 2 tầng
- Mẫu biệt thự 3 tầng
- Mẫu biệt thự 4 tầng
- Mẫu biệt thự 5 tầng
- Mẫu biệt thự 6 tầng
- Mẫu biệt thự 7 tầng
- Mẫu biệt thự cổ điển
- Mẫu biệt thự hiện đại
- Mẫu biệt thự hoành tráng
- Mẫu biệt thự kiểu Pháp
- Mẫu biệt thự mini
- Mẫu biệt thự nghỉ dưỡng
- Mẫu biệt thự nhà vườn
- Mẫu biệt thự phố
- Mẫu biệt thự sang trọng
- Mẫu biệt thự tân cổ điển
- Mẫu biệt thự đẳng cấp
- Mẫu nội thất biệt thự
- Mẫu nhà biệt thự 3 tầng
- Mẫu sân vườn biệt thự
- Phong thủy nhà biệt thự
- Thiết kế biệt thự 2 tầng
- Thiết kế biệt thự 3 tầng
- Thiết kế biệt thự 4 tầng
- Thiết kế biệt thự 5 tầng
- Thiết kế biệt thự cổ điển
- Thiết kế biệt thự hiện đại
- Thiết kế biệt thự hoành tráng
- Thiết kế biệt thự nhà vườn
- Thiết kế biệt thự sang trọng
- Thiết kế biệt thự tân cổ điển
- Thiết kế biệt thự vĩnh cửu
- Thiết kế biệt thự đẳng cấp
- Thiết kế biệt thự đẹp
- Thiết kế nội thất biệt thự
- Thiết kế sân vườn biệt thự
- Thiết kế sân vườn cho biệt thự
- Thiết kế sân vườn nhà biệt thự
-
Biệt thự tại Tỉnh/Thành phố
- Biệt thự tại Hà Nội
- Biệt thự tại Hồ Chí Minh
- Biệt thự tại Hải Phòng
- Biệt thự tại Cần Thơ
- Biệt thự tại Đà Nẵng
- Biệt thự tại Quảng Ngãi
- Biệt thự tại Quảng Nam
- Biệt thự tại Quảng Bình
- Biệt thự tại Phú Yên
- Biệt thự tại Phú Thọ
- Biệt thự tại Ninh Thuận
- Biệt thự tại Ninh Bình
- Biệt thự tại Nghệ An
- Biệt thự tại Long An
- Biệt thự tại Lào Cai
- Biệt thự tại Lạng Sơn
- Biệt thự tại Lâm Đồng
- Biệt thự tại Lai Châu
- Biệt thự tại Quảng Ninh
- Biệt thự tại Quảng Trị
- Biệt thự tại Yên Bái
- Biệt thự tại Vĩnh Phúc
- Biệt thự tại Vĩnh Long
- Biệt thự tại Tuyên Quang
- Biệt thự tại Trà Vinh
- Biệt thự tại Tiền Giang
- Biệt thự tại Thừa Thiên Huế
- Biệt thự tại Thanh Hóa
- Biệt thự tại Thái Nguyên
- Biệt thự tại Thái Bình
- Biệt thự tại Tây Ninh
- Biệt thự tại Sơn La
- Biệt thự tại Sóc Trăng
- Biệt thự tại Kon Tum
- Biệt thự tại Kiên Giang
- Biệt thự tại Cà Mau
- Biệt thự tại Bình Thuận
- Biệt thự tại Bình Phước
- Biệt thự tại Bình Dương
- Biệt thự tại Bình Định
- Biệt thự tại Bến Tre
- Biệt thự tại Bắc Ninh
- Biệt thự tại Bạc Liêu
- Biệt thự tại Bắc Kạn
- Biệt thự tại Bắc Giang
- Biệt thự tại Bà Rịa Vũng Tàu
- Biệt thự tại An Giang
- Biệt thự tại Cao Bằng
- Biệt thự tại Đắk Lắk
- Biệt thự tại Đắk Nông
- Biệt thự tại Khánh Hòa
- Biệt thự tại Hưng Yên
- Biệt thự tại Hòa Bình
- Biệt thự tại Hậu Giang
- Biệt thự tại Hải Dương
- Biệt thự tại Hà Tĩnh
- Biệt thự tại Hà Nam
- Biệt thự tại Hà Giang
- Biệt thự tại Gia Lai
- Biệt thự tại Đồng Tháp
- Biệt thự tại Đồng Nai
- Biệt thự tại Điện Biên
- Biệt thự tại Nam Định
-
Phong thủy xây nhà
[Chia sẻ] bản vẽ cad biệt thự 3 tầng hiện đạiDiễn Đàn Kiến Trúc Á Đông




